Leave a Message

Thank you for your message. I will be in touch with you shortly.

Explore Properties

Property Description

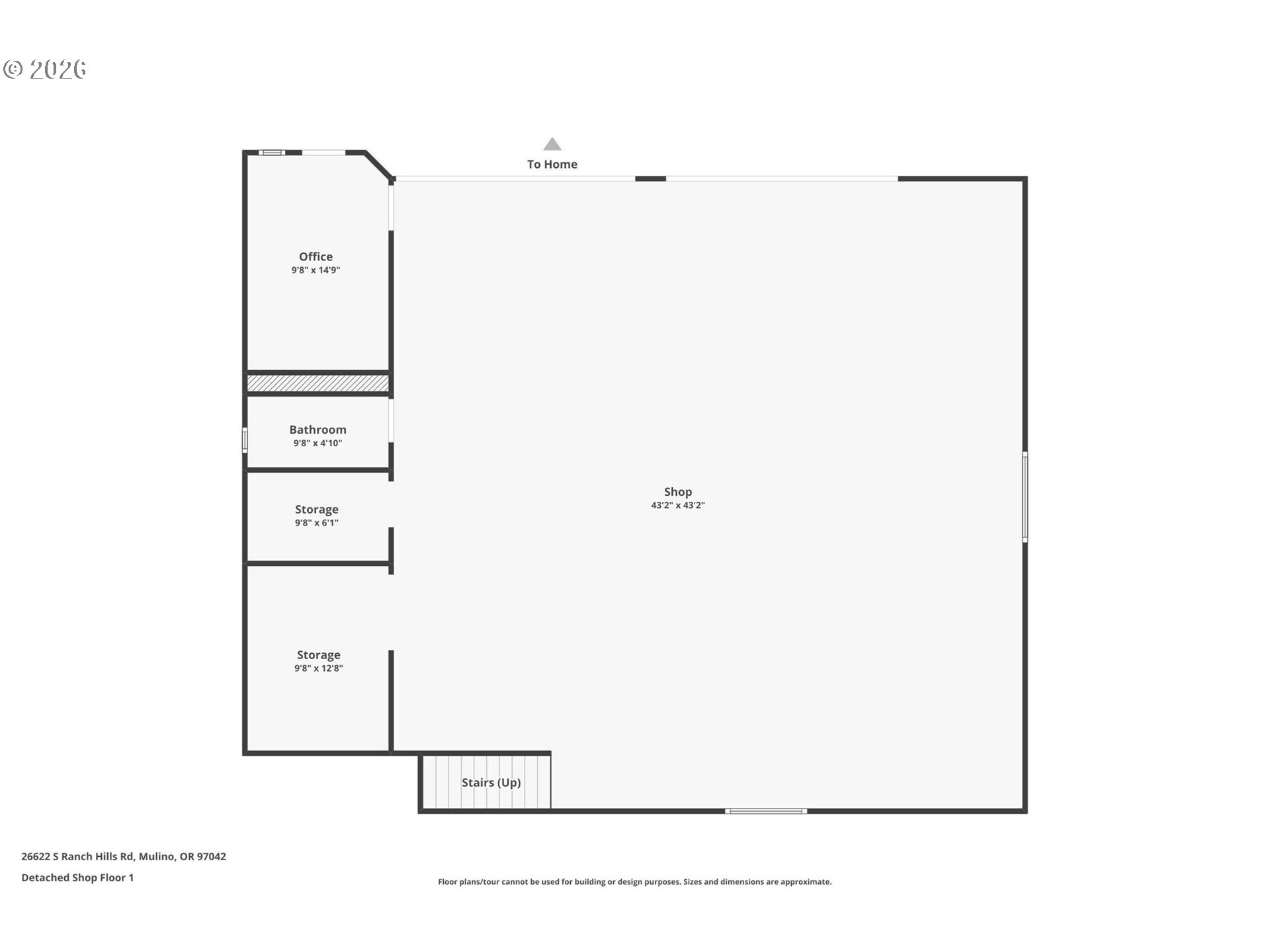
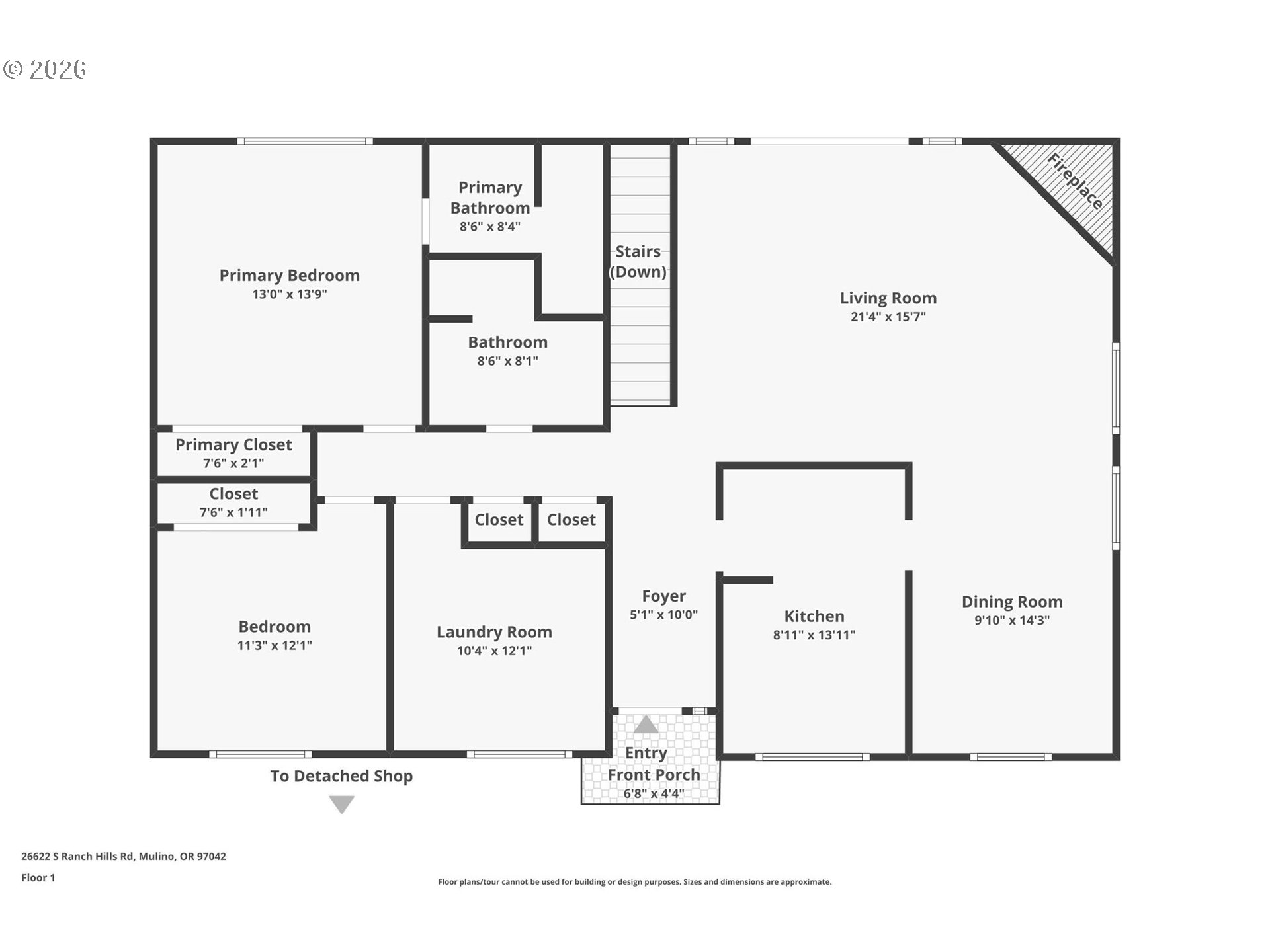
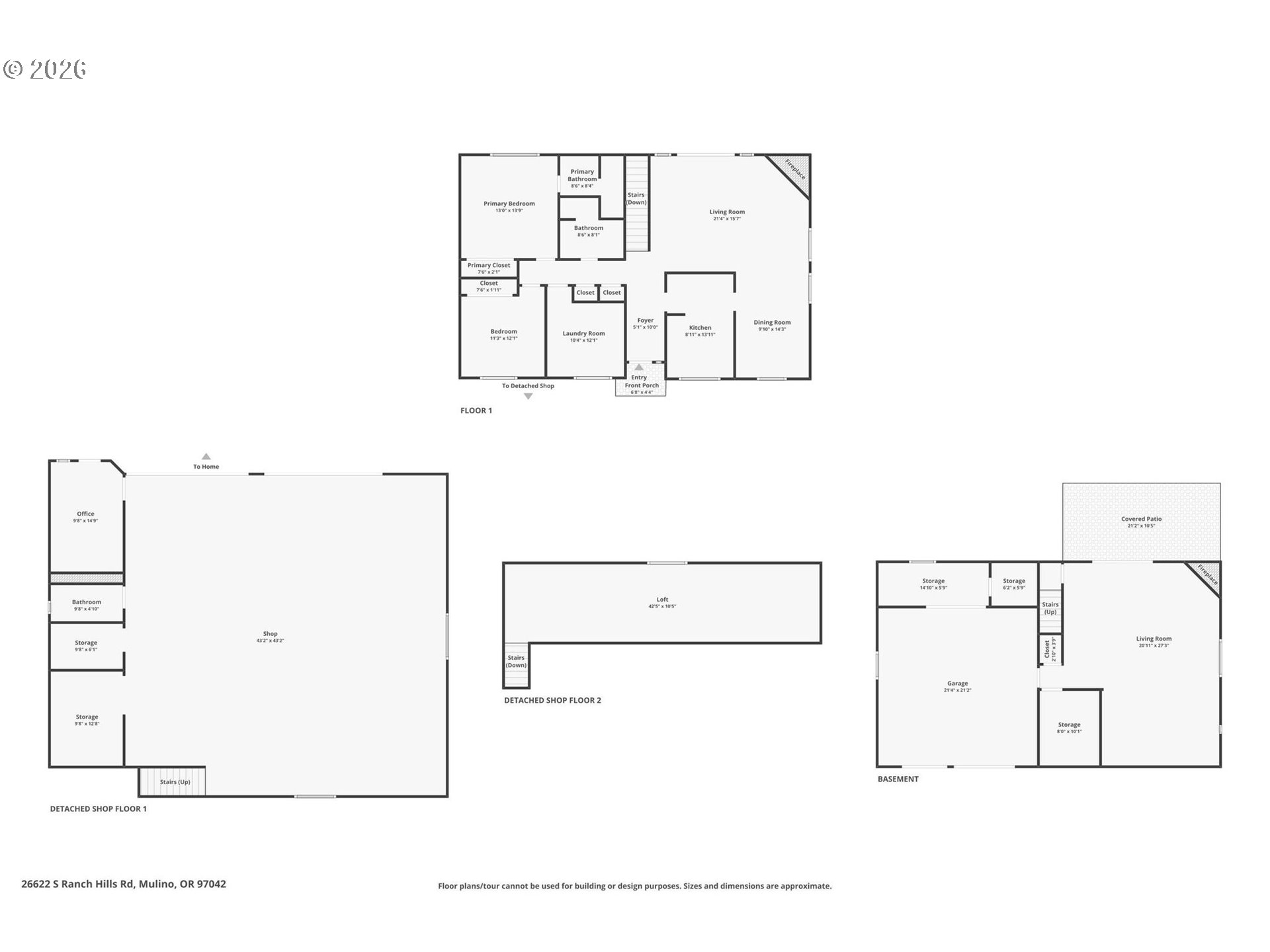
No Sign on Property! Tucked away on 0.8 acres overlooking the former Ranch Hills Golf Course, this 2,174 square foot two-story home offers a rare combination of privacy, usable land, and exceptional shop space just minutes from town.The setting is the star. Enjoy peaceful territorial views of rolling greens and surrounding hillsides, with room to breathe and space to create the lifestyle you've been wanting.The property features a fully equipped 40x50 oversized shop with 220 power, concrete floors, heat, a bathroom, dedicated office space, and 16-foot doors. Ideal for contractors, hobbyists, car enthusiasts, small business owners, RV storage, or anyone needing serious workspace. Opportunities like this are hard to find.Inside, the 3-bedroom, 2-bath home offers generous square footage and a functional two-story layout with multiple living spaces and excellent natural light. The home provides a comfortable, well-maintained foundation with room to make it your own over time. The recently updated shower and bathroom flooring add a fresh touch, while the overall layout offers flexibility for everyday living, entertaining, or working from home.The spacious lot allows for gardening, chickens, storage, and outdoor enjoyment, with plenty of room for toys, trailers, equipment, or future plans.If you've been searching for usable acreage, a true shop setup, and peaceful rural surroundings with views, this Mulino property delivers.

Overview

Property Status
For Sale
Lot Size
0.84 Acres
MLS ID
288613444
Property Type
Residential
Year Built
1975

Features & Amenities

Total Area
2,174 Sq.Ft.
Architecture Styles
Stories 2, Ranch
View Description
Territorial, Trees Woods
Stories
2
Garage Spaces
2.0
Water Source
Public Water
Roof
Composition
Lot Features
Level
Parking
Driveway, RVAccess Parking
Heat Type
Forced Air
Air Conditioning
Central Air
Fireplace
Pellet Stove, Wood Burning
Appliances
Dishwasher
Other Interior Features
Laundry
Sewer
Septic Tank
Substructure
Concrete Perimeter
Security Features
None
Other Exterior Features
Deck, RVBoat Storage, Yard
Elementary School
Mulino
Middle School
Molalla River
High School
Molalla
Sales Price
$650,000
Real Estate Tax
$5,398/yr
Zoning
RS

Downloads

26622 S RANCH HILLS RD

Schedule a Tour

I would love to help you see this beautiful home! As a full-service brokerage, we can help you tour. Please submit an offer, and answer questions about the buying process.

Thank you

for your interest in 26622 S RANCH HILLS RD, Mulino, OR 97042

26622 S RANCH HILLS RD
Navigate

 

26622 S RANCH HILLS RD
explore in 3d

Mortgage Calculator

Estimate your monthly mortgage payment, including the principal and interest, property taxes, and HOA. Adjust the values to generate a more accurate rate.
$0,000 Your Payment 20 15 65
$0,000 Your Payment

I'm Interested In

26622 S RANCH HILLS RD

or
  • CallNik Kulikov

    License #201206841

    971.338.0657
  • Hand-Selected Listings for the Modern Oregon Lifestyle

    Homes That Stand Above the Rest

    Nik’s featured properties represent the best of Lake Oswego and the Portland metro area — homes chosen for their design, location, and long-term value.

    • 26622 S RANCH HILLS RD For Sale

      $650,000

      26622 S RANCH HILLS RD, Mulino, OR 97042

      • 2 Beds
      • 2 Baths
      • 2,174 Sq.Ft.
    • 624 N Pershing ST, Mt. Angel For Sale

      $475,000

      624 N Pershing ST, Mt. Angel, Mt Angel, OR 97362

      • 3 Beds
      • 2 Baths
      • 1,452 Sq.Ft.
    • 420 WALNUT WAY Pending

      $425,000

      420 WALNUT WAY, Silverton, OR 97381

      • 2 Beds
      • 2 Baths
      • 1,234 Sq.Ft.
    • 1740 JANSEN WAY For Sale

      $325,000

      1740 JANSEN WAY, Woodburn, OR 97071

      • 2 Beds
      • 1 Bath
      • 853 Sq.Ft.
    • 1720 JANSEN WAY For Sale

      $300,000

      1720 JANSEN WAY, Woodburn, OR 97071

      • 2 Beds
      • 1 Bath
      • 1,014 Sq.Ft.
    View All

    Follow Us On Instagram